Arquitectura contemporanea
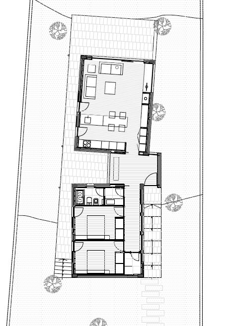
Vivienda unifamiliar en Sandiche

En el núcleo rural de Sandiche, Asturias, próximo al río Nalón, con magníficas vistas, se encuentra esta casa unifamiliar de fin de semana.
Volumétricamente su arquitectura se resuelve en una única planta, respondiendo a la escala rural del emplazamiento. Implantada lateralmente, se aparta de la calle lo suficiente para permitir el estacionamiento junto a la casa y el recorrido peatonal se realiza a través de unas losas de piedra apoyadas en el terreno.
Tres piezas articuladas entre sí organizan el espacio y marcan los usos: zona de día y zona de noche, ambas unidas por una pieza central que se disloca ligeramente para marcar el punto de acceso y se convierte en bisagra de las otras dos que giran levemente buscando la mejor orientación.

Luz natural, soleamiento correcto y contacto con la naturaleza. Así el dimensionamiento de los vanos es capaz de asegurar diferentes situaciones, el resultado es un vano-puerta que abre todas las estancias (comunes y privadas) de la casa al exterior al estilo casa minimalista, subvirtiendo la lógica de que la ventana no es un elemento de paso.


La cubierta, inclinada a un agua, se prolonga en una de las fachadas laterales, en la parte Sur, conquistando un espacio exterior cubierto vinculado directamente con la zona de día.


Planos de casas

Estudio de arquitectura: OmasC Arquitectos
Arquitectos: Iria Comoxo Gómez y David Olmos





3 comentarios:
Interesante, me gusta, si contruyo una casita puede ser algo parecido ^^
las madidas?
muy Siza
Publicar un comentario